マンション コープ野村新安城B棟
所在地
安城市今池町2丁目
1,980万円
70.97m²
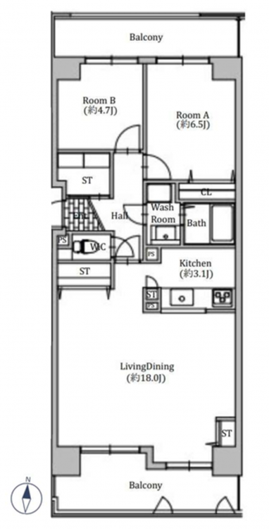
2LDK
広々とした敷地で安心の住環境。
名鉄名古屋本線【新安城】駅 …約640m(徒歩8分)
名鉄西尾線【新安城】駅 …約640m(徒歩8分)
安城市立今池小学校 …約440m(徒歩6分)
安城市立安城北中学校 …約2,000m(徒歩25分)
子宝保育園 …約1,000m(徒歩13分)
イトーヨーカドー安城店 …約500m(徒歩7分)
DCM安城住吉店 …約810m(徒歩11分)
ファミリーマート安城住吉町店 …約750m(徒歩10分)
サンドラッグ安城店 …約670m(徒歩9分)
前之池公園 …約400m(徒歩5分)
物件概要
- 交通
-
名鉄名古屋本線 新安城駅 まで 徒歩8分
名鉄西尾線 新安城駅 まで 徒歩8分
- 専有面積
- 壁芯 70.97㎡
- バルコニー面積
- 17.01㎡
- バルコニー方向
- 南
- 所在階/階数
- 6階/11階
- 築年数
-
1987年
(昭和62)
7月
築38年 - 建ぺい率
- 容積率
- 土地権利
- 所有権
- 構造および階数
- SRC(鉄骨鉄筋コンクリート) 造 地上11階建
- 総戸数
- 185戸
- 小学校区
- 今池 ( 440m )
- 中学校区
- 安城北 ( 2000m )
- 地目
- 現況
- 空
- 引渡時期
- 相談
- 駐車場
- 空有
- 駐車場月額
- 6,000〜9,000円/月
- 管理形態
- 全部委託
- 管理方式
- 管理人日勤
- 管理会社
- 日本ハウズイング株式会社
- 管理費
- 6,420円
- 修繕積立費
- 10,830円
- 上水道
- 公共
- 下水道
- 公共
- ガス
- 都市ガス
- 都市計画
- 用途地域
- 1種住居
- 設備・条件
- システムキッチン、シャンプードレッサー、洗浄便座、ペット可
- 備考
-
※敷地内駐車場:有 6,000円~9,000円/月
(一住戸一台のみ利用可)敷金(月額の3か月分)要
※駐輪場:有 50円/年 登録料(200円)要
(複数台空有 2025年9月現在)
※バイク置場:有 50円/年 登録料(200円)要
(複数台空有 2025年9月現在)
※町内会費:詳細は町内会に確認
※インターネット:コミュファ、NTT、KATCH
※当該住戸はエレベーター非停止階
※ペットの飼育:可(承認・承諾要。ペット飼育者の会に入会必須(年会費400円))
※1住戸当たり小鳥は3羽以下とし、それ以外のペットは1頭以下とする。
犬又は猫については、成犬及び成猫時の体重が15㎏を超えるもの、及び飼育者が抱きかかえられないものは禁止。
その他のペットは個々に全体組合の審議、決定する。 - 取引態様
- 仲介

