新築一戸建て 安城市百石町2丁目B棟
所在地
安城市百石町2丁目B棟
4,530万円
34.00坪
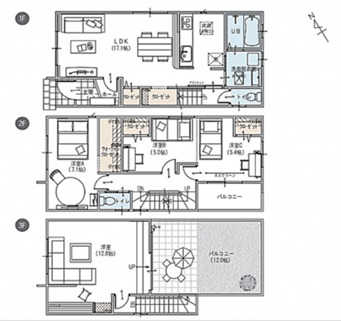
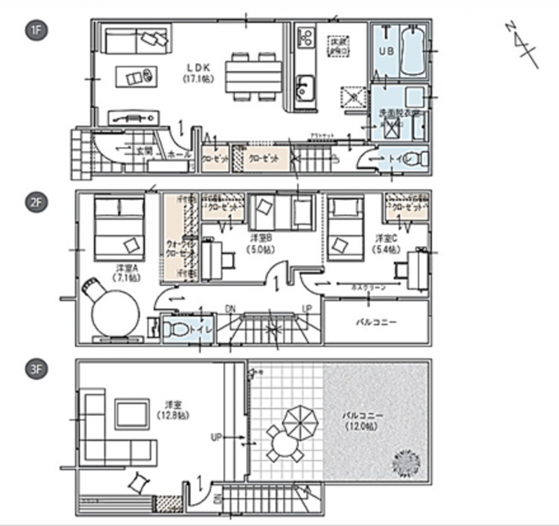
4LDK
(B棟)4LDK+WIC。
屋上バルコニー12帖。
JR東海道本線【安城】駅 …約1,920m(徒歩24分)
安城市立桜町小学校 …約1,600m(徒歩20分)
安城市立安城南中学校 …約400m(徒歩5分)
てらべクリエイティブこども園 …約1,000m(徒歩13分)
業務スーパー安城店 …約700m(徒歩9分)
ローソン安城城南店 …約750m(徒歩10分)
スギドラッグ百石店 …約40m(徒歩1分)
昭林公園 …約120m(徒歩2分)
物件概要
- 交通
-
JR東海道本線 安城駅 まで 徒歩24分
- 接道状況
- 北西側 公道6m 間口約5.5m
- 土地面積
- 実測 92.74㎡ (28.05坪)
- 建物面積
- 112.41㎡ (34.00坪)
- 築年数
- 2026年 (令和8) 1月
- 建ぺい率
- 60%
- 容積率
- 150%
- 土地権利
- 所有権
- 構造および階数
- 木造 地上3階建
- 小学校区
- 桜町 ( 1600m )
- 中学校区
- 安城南 ( 400m )
- 私道負担
- 無
- 地目
- 宅地
- 現況
- 空
- 引渡時期
- 相談
- 駐車場
- 有
- 上水道
- 公共
- 下水道
- 公共
- ガス
- 都市ガス
- 都市計画
- 市街化区域
- 用途地域
- 1種中高
- 設備・条件
- 側溝、システムキッチン、食器洗浄乾燥機、洗浄便座、浴室乾燥機、追い焚き、複層ガラス、ウォークインクローゼット、モニタ付インターホン、駐車場2台分、床下収納、トイレ2箇所
- 備考
- 取引態様
- 仲介

